800-537-2448
3300 Jefferson Davis Hwy, Sanford, NC 27332
Log In
Register
Home
Plans
Contact
Contact Us / Directions
Our Team
Request Catalog
About
FAQs
Our Story
Building Area
{1}
##LOC[OK]##
{1}
##LOC[OK]##
##LOC[Cancel]##
{1}
##LOC[OK]##
##LOC[Cancel]##
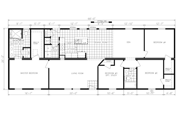
HBS-Cedar
Starting Below $199,995
Plan Details
Pictures / Floorplans
Standard Features
HBS-Cedar
HBS-ESSENTIAL
Available as:
Ranch only
Finished Area:
1812 ft
2
Bedrooms:
4
Bathrooms:
2.0
Roof Pitch as Priced:
Item 1 of 0
Call
800-537-2448
to Unlock Confidential Pricing
HBS-ESSENTIAL Standard Features
HBS ESSENTIAL series
Built to exceed Residential Building Code
Built using Green techniques
2x6 Exterior walls with R-19 Insulation
2x10 Floor joists with R-30 insulation
8’-0” Ceilings With R-30 insulation
Smooth ceilings with 3.5" crown molding
Led can lights
50 gallon water heater
5/12 Roof pitch
Architectural shingles with ridge vent
Carpet and rolled vinyl flooring
Prepped for refrigerator, range, dishwasher and microwave.
Shaker style cabinets
Vinyl insulated “Low E Glass” windows
32” average block foundation
Transportation of modules to the building site
Crane expenses
Placing of the modules on the foundation
Installation of exterior siding and shingles
Interior trim and carpet installation
NC sales tax
The following items are not in the base price but are available in our standard building area-
For complete list please contact our office
.
HVAC system
Plumbing and Electrical hookups
Land prep
Steps, decks porches and garages. (unless part of the factory house design)
Search Results
No plans meet your search criteria. Please revise your search and try again
Copyright © 2026 Homes by Vanderbuilt All Rights Reserved