Riverside 5/12 
Starting Below $299,995
  • Plan Details
  • Pictures / Floorplans
  • Videos
  • Standard Features
  • Similar Plans
Riverside 5/12
Rockbridge (R-Anell)
Available as:
  • Ranch or Cape style
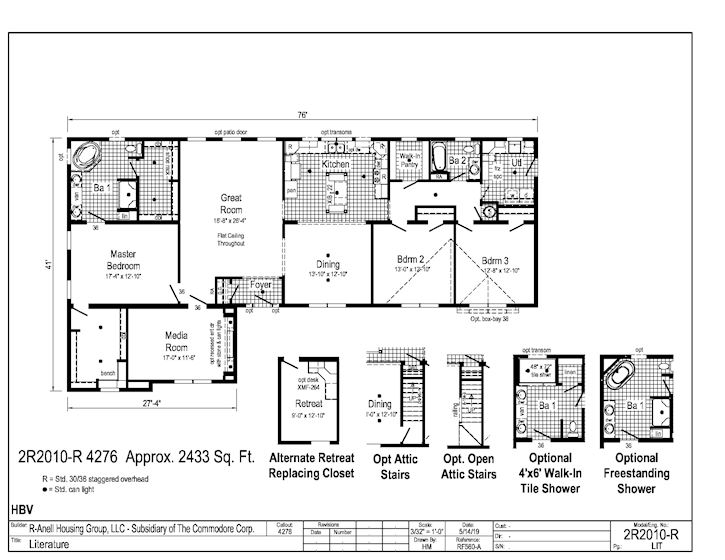
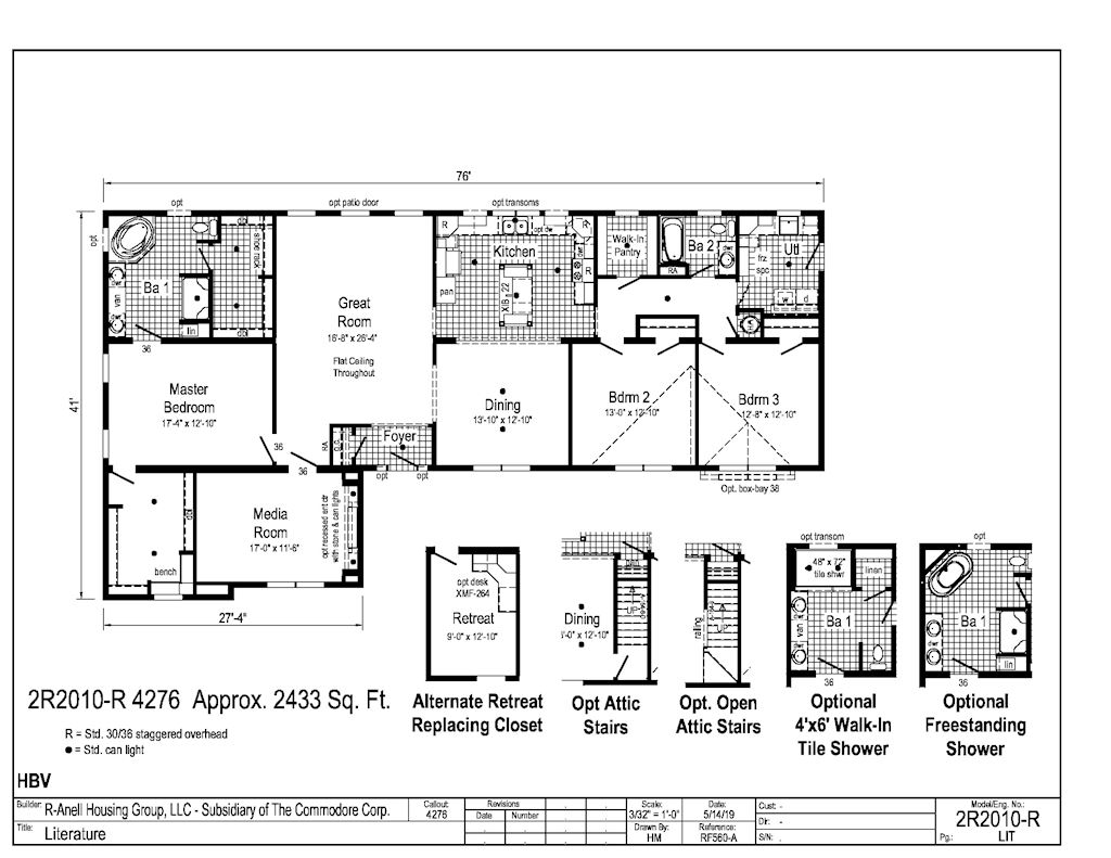
Finished Area: 2433 ft2
Bedrooms: 3
Bathrooms: 2.0
Roof Pitch as Priced:

Optional Roof Pitches Available:
7/12
9/12
12/12
Main Image
Item 1 of 0
 
  • 2155_fp_main_1586989023
  • 2155_photo_int_1586989474
  • 2155_photo_int_1586989433
  • 2155_photo_int_1586989524
  • 2155_photo_ext_1586989744
  • 2155_render_alt_1586989912
  • 2155_render_prim_1586989937
  • 2155_photo_int_1588188919
  • 2155_photo_int_1588188952
  • 2155_photo_int_1589396499
  • 2155_photo_int_1589396568
  • 2155_photo_int_1589396620
  • 2155_photo_int_1589396682
  • 2155_photo_ext_1608674867
  • 2155_photo_ext_1608674898
Call 800-537-2448 to Unlock Confidential Pricing

Rockbridge (R-Anell) Standard Features

  • Rockbridge Series-Ranell

  • Built to exceed Residential Building Code
  • Built using Green techniques
  • 2x6 Exterior walls with R-19 Insulation
  • 2x10 Floor joists with R-30 insulation
  • 8’-0” Ceilings (9’-0” available)With R-30/38 insulation
  • 5/12 Roof pitch (7/12, 9/12 and 12/12 available on select models
  • Architectural shingles with ridge vent
  • Vinyl tile or vinyl plank in wet areas and carpet
  • Energy Star appliances, Range, Refrigerator
  • USB charging station
  • 6 Panel interior doors
  • Flat panel maple or oak Cabinets
  • Dove tailed cabinet drawers
  • Vinyl insulated “Low E Glass” windows
  • 32” average block foundation
  • Transportation of modules to the building site
  • Crane expenses
  • Placing of the modules on the foundation
  • Installation of exterior siding and shingles
  • Interior trim and carpet installation
  • NC sales tax
  •  
        • The following items are not in the base price but are available in our standard building area- For complete list please contact our office.
      • HVAC system
      • Plumbing and Electrical hookups
      • Land prep
      • Steps, decks porches and garages. (unless part of the factory house design)
  •  
Search Results
2 Plans meet your search criteria

Riverside 5/12

Starting Below $299,995
Series: Rockbridge (R-Anell)
Finished Area: 2433 ft2
Bedrooms: 3
Bathrooms: 2.0
Call 800-537-2448 to Unlock Confidential Pricing

Riverbank 5/12

Starting Below $249,995
Series: Rockbridge (R-Anell)
Finished Area: 2077 ft2
Bedrooms: 3
Bathrooms: 2.5
Call 800-537-2448 to Unlock Confidential Pricing